




Local en la Calle Calle de Altamirano, Moncloa, Madrid capital (Ref.2104)
Descripción de la propiedad
Gentile Home RE/MAX presenta:
Un espectacular LOCAL en proceso de conversión para vivienda estilo loft completamente renovado en el entorno más elegante de Argüelles / Ferraz, una de las zonas con más personalidad y demanda de Moncloa. Este espacio único, concebido por un prestigioso estudio de arquitectura madrileño, redefine el concepto de vivienda urbana con un diseño minimalista y sofisticado, donde cada detalle ha sido pensado para armonizar estilo, funcionalidad y confort.
Los techos de tres metros de altura y la entrada de luz natural que inunda el ambiente gracias a su orientación sureste y al retranqueo del edificio de enfrente, crean una atmósfera abierta, cálida y contemporánea. Su doble acceso, tanto desde la calle como desde el interior de la finca señorial en la que se encuentra, refuerza su carácter versátil y exclusivo.
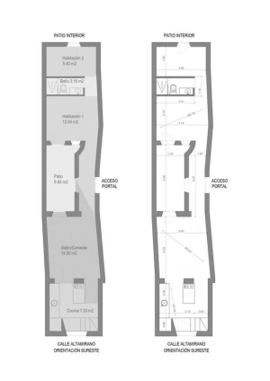
El espacio se distribuye de forma inteligente en torno a un patio central, articulando dos zonas bien diferenciadas: una más pública, con office totalmente equipado (lavavajillas, lavadora, horno, vitrocerámica, campana y nevera, todo nuevo) y estancia principal; y otra más privada, compuesta por dos ambientes y un baño completo. Además, sus múltiples ventilaciones naturales hacia dos patios interiores, uno de ellos de uso exclusivo, garantizan frescor y luminosidad durante todo el año.
La fachada con dos escaparates permite personalizar su uso con infinitas posibilidades —desde vivienda moderna hasta estudio o despacho de autor—. Cada instalación ha sido renovada por completo (electricidad, fontanerÃa, climatización), ofreciendo un inmueble listo para estrenar, funcional y con carácter.
Vivir en el entorno de Altamirano, en Moncloa, es disfrutar de la esencia madrileña más auténtica: calles tranquilas, excelente comunicación con metro y autobuses, restaurantes y cafeterÃas con encanto, plazas arboladas y jardines, mercados tradicionales, farmacias, gimnasios y todos los servicios necesarios a pocos pasos.
Para más información o para concretar una visita, contáctanos.
CaracterÃsticas principales
- Referencia:Â 2104
- Precio: 375.000 €
- Metros construidos :Â 63
- Baños : 1
- Año de construcción : 1926
- Plantas del local :Â 1
- Espacios diferenciados :Â
- Es comercial :Â
Ubicación de la propiedad
NOTA: La información de esta propiedad puede haber cambiado, por tanto no somos responsables de la fiabilidad de la información, por favor contacte con nosotros para conocer las caracterÃsticas exactas.
































