




NewDevelopmentHomeTypologyName en la Calle Calle de Bravo Murillo, Chamberí, Madrid capital (Ref.2131)
Descripción de la propiedad
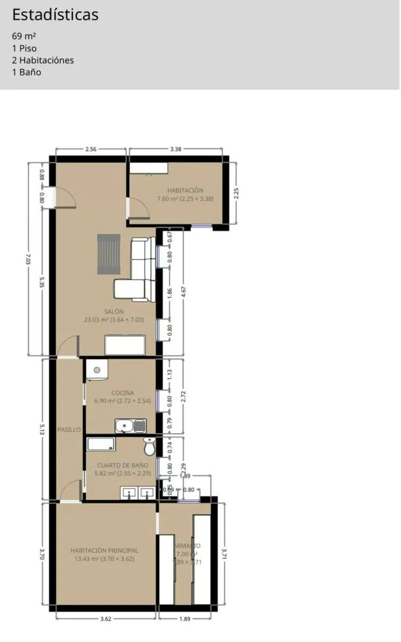
REMAX Dcore presenta una oportunidad excepcional de inversión y vida en una de las ubicaciones más codiciadas de la capital. Esta propiedad, situada en una sexta planta de una finca clásica de 1931, rompe con los esquemas de las viviendas interiores gracias a su privilegiada orientación sur y a su altura. Al asomarse a sus ventanas, la mirada se pierde en un amplio patio de manzana rodeado de edificios de menor estatura, lo que garantiza una entrada de luz natural constante y una serenidad acústica difícil de encontrar en el corazón de la ciudad. Con 69 m² construidos, la vivienda ha sido proyectada para maximizar cada rincón, ofreciendo un salón confortable que invita al descanso y una distribución equilibrada donde la luz es la verdadera protagonista.
El área de descanso se compone de dos dormitorios diseñados para la versatilidad. El dormitorio principal destaca por contar con un vestidor independiente, un lujo de privacidad y organización, mientras que la segunda estancia se adapta perfectamente a las necesidades de un despacho profesional o una habitación de invitados. La cocina, independiente y completamente equipada, se complementa con un baño en perfecto estado que disfruta de ventilación natural. Equipada con aire acondicionado, suelos de tarima y calefacción individual, esta casa se presenta en un estado impecable, lista para ser habitada desde el primer día. Además, el edificio cuenta con un portal bien conservado, ascensor y acceso adaptado para personas con movilidad reducida, fusionando el encanto arquitectónico de principios del siglo XX con las comodidades actuales.
Residir en este enclave de Chamberí, a escasos pasos de la emblemática zona de Quevedo, es sumergirse en la esencia del Madrid más auténtico y sofisticado. La vida cotidiana se facilita gracias a una red de transporte público envidiable y una oferta de servicios que cubre todas las necesidades: desde mercados tradicionales y farmacias de confianza hasta las tiendas más exclusivas. Los momentos de ocio están asegurados con una oferta de hostelería que combina tabernas castizas con restaurantes de vanguardia, sin olvidar la proximidad a cines, teatros y plazas emblemáticas que articulan la vida social del barrio. Los jardines y espacios abiertos cercanos ofrecen ese respiro verde necesario en la urbe, convirtiendo esta propiedad en un refugio de paz rodeado de la energía vibrante de la ciudad.
Es importante destacar que en esta operación no cobramos honorarios a la parte compradora, facilitando así el proceso de adquisición de su futura propiedad bajo un marco de transparencia y profesionalidad.
Para obtener más información detallada, consultar aspectos específicos de la vivienda o concretar una visita personalizada para descubrir el potencial de este inmueble, no dude en contactarnos.
Características principales
- Referencia: 2131
- Precio: 579.000 €
- Metros construidos : 69
- Baños : 1
- Dormitorios : 2
- Aire Acondicionado :
- Ascensor :
- Año de construcción : 1931
- Accesibilidad Interior :
- Accesibilidad exterior :
Ubicación de la propiedad
NOTA: La información de esta propiedad puede haber cambiado, por tanto no somos responsables de la fiabilidad de la información, por favor contacte con nosotros para conocer las características exactas.
















