




Pisos en la Calle Calle de Ciudad Real, Arganzuela, Madrid capital (Ref.2049)
Descripción de la propiedad
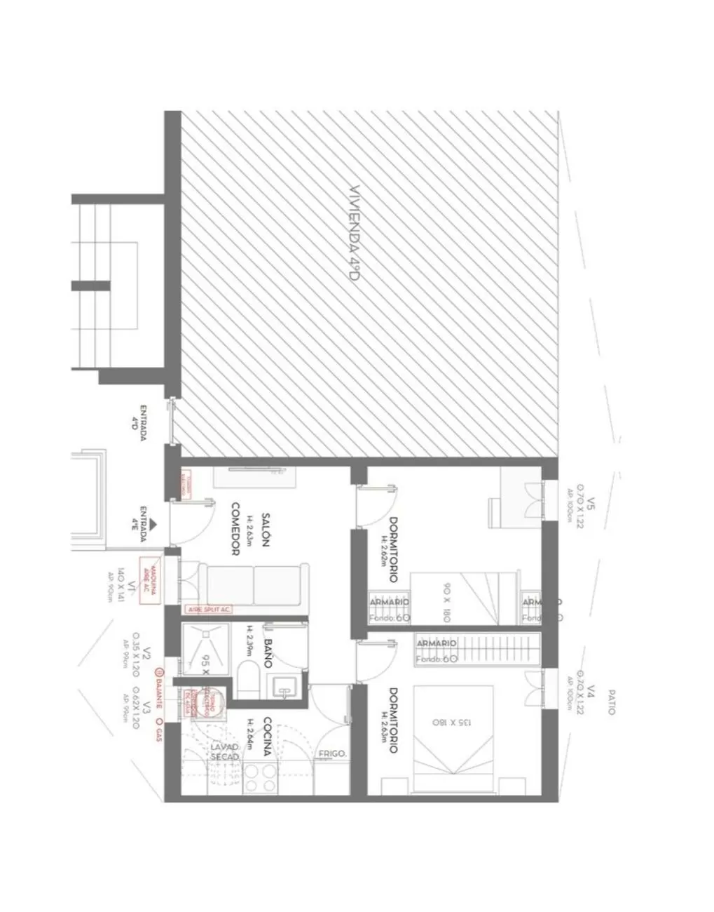
Gentile Home RE/MAX presenta. Vivienda de 40 m² catastrales, con 38 m² construidos y 32 m² útiles, situada en una cuarta planta interior de una finca moderna de 1928 con ascensor, en el entorno de la calle Ciudad Real, en pleno barrio de Delicias, en el centro de Madrid. La propiedad ha sido transformada por ArcTempus, dando lugar a un espacio actual, funcional y perfectamente aprovechado, pensado para quienes buscan una vivienda urbana con diseño y comodidad. La distribución integra un salón-comedor con cocina equipada, dos dormitorios y un baño completo, con una estética contemporánea basada en materiales actuales, tonos neutros y líneas limpias que aportan equilibrio y sensación de amplitud. Se entrega completamente reformada, amueblada, con calefacción por termo eléctrico, aire acondicionado, portería y certificado energético, lista para entrar a vivir o rentabilizar desde el primer día. Una propuesta que refleja la esencia de ArcTempus: espacios inteligentes y una nueva forma de habitar la ciudad.
Vivir en esta zona de Delicias es disfrutar de un entorno dinámico y bien conectado, con excelentes comunicaciones en transporte público, una amplia oferta de hostelería y ocio, plazas con vida de barrio, jardines cercanos, farmacias, mercados tradicionales y todos los servicios necesarios para una vida cómoda y activa en el centro de Madrid.
No cobramos honorarios al comprador. Para más informaciones o concretar visitas, contáctanos.
Características principales
- Referencia: 2049
- Precio: 409.000 €
- Gastos de comunidad : 55
- Metros construidos : 40
- Metros útiles : 32
- Baños : 1
- Dormitorios : 2
- Armarios :
- AA :
- Ascensor :
- Año construccion : 1928
- Metros usables : 32
- Aire Acondicionado :
- Año de construcción : 1928
Ubicación de la propiedad
NOTA: La información de esta propiedad puede haber cambiado, por tanto no somos responsables de la fiabilidad de la información, por favor contacte con nosotros para conocer las características exactas.




































