




Pisos en la Calle Calle de Francisco Remiro, Barrio de Salamanca, Madrid capital (Ref.)
Descripción de la propiedad
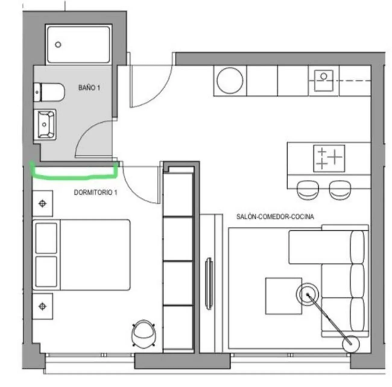
Gentile Home RE/MAX presenta una atractiva vivienda de un dormitorio situada en una de las zonas con mayor proyección del distrito de Salamanca, en el entorno de La Guindalera.
Se trata de un bajo exterior con ascensor, con 53 m² construidos, en un edificio de reciente construcción del año 2024, lo que garantiza diseño actual, eficiencia y confort desde el primer día.
La vivienda destaca por la calidad de sus materiales y soluciones técnicas: sistema de aerotermia con fancoil, suelos porcelánicos de alta resistencia, cocina completamente equipada con electrodomésticos Balay, incluyendo lavadora-secadora, y persianas de aluminio motorizadas.
La seguridad también ha sido cuidada al detalle, con puerta de acceso acorazada, cerco de acero, cerradura de seguridad, herrajes reforzados y acristalamiento de seguridad. La plaza de garaje está incluida en el precio, un valor añadido imprescindible en la zona.
Vivir en La Guindalera permite disfrutar de una excelente conexión con la M-30 y el resto de la ciudad, además de contar con una amplia red de transporte público, comercios de proximidad, mercados tradicionales, farmacias, centros deportivos, plazas arboladas, jardines y una variada oferta de hostelería y ocio que hacen el día a día cómodo y dinámico.
Para más informaciones o concretar visitas, contáctanos.
Características principales
- Referencia: ''
- Precio: 405.000 €
- Metros construidos : 53
- Baños : 1
- Dormitorios : 1
- Armarios :
- AA :
- Ascensor :
- Parking Incluido :
- Tiene parking :
- Accesibilidad Interior :
- Accesibilidad exterior :
Ubicación de la propiedad
NOTA: La información de esta propiedad puede haber cambiado, por tanto no somos responsables de la fiabilidad de la información, por favor contacte con nosotros para conocer las características exactas.














