




Pisos en la Calle Calle de Jovellanos, Centro, Madrid capital (Ref.)
Descripción de la propiedad
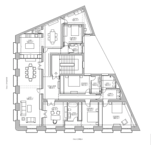
Gentile Home RE/MAX presenta una residencia excepcional situada en el entorno de la Calle de Jovellanos, en pleno Barrio de las Letras, un enclave donde la elegancia histórica convive con la efervescencia cultural del centro de Madrid. Esta propiedad única ocupa toda la primera planta de un edificio clásico del siglo XIX y ofrece 321 m² diseñados para quienes buscan una vivienda de gran presencia arquitectónica, con una intervención integral realizada por un interiorista especializado en espacios señoriales. Sus techos superan los 3,60 m de altura y los once ventanales —seis orientados al sur y cinco al oeste— proyectan una luz privilegiada sobre cada estancia, reforzando el carácter amplio y representativo del inmueble.
La distribución incorpora un gran salón-comedor, cocina con office, despensa y cuarto de lavandería. La zona de día se completa con un dormitorio adicional y un baño que sirven este sector de la vivienda. Los otros cuatro dormitorios —uno reconvertido en biblioteca con balcón— cuentan con baños en suite, armarios empotrados y accesos a balcones o ventanas. La climatización combina un sistema inverter de frío/calor por conductos con calefacción individual de gas natural, manteniendo algunos radiadores originales restaurados, un detalle que subraya el respeto por la esencia del edificio.
Pese a su ubicación en una planta exterior, el edificio conserva su estructura clásica sin ascensor, lo que forma parte de la autenticidad de esta finca histórica.
El área que rodea esta calle es una de las más codiciadas del distrito Centro: hoteles emblemáticos, teatros de gran formato, instituciones culturales de prestigio, zonas verdes como el Retiro, espacios gastronómicos de referencia y servicios de todo tipo se encuentran a pocos pasos. La movilidad es inmejorable, con múltiples líneas de autobús, metro y accesos cómodos hacia puntos clave como Cibeles, Neptuno, Gran Vía, Puerta del Sol o Atocha. Aquí, vivir significa disfrutar de un entorno vibrante, seguro y lleno de opciones, desde ocio hasta mercados, farmacias, jardines y plazas.
Para más informaciones o concretar visitas contáctanos.
Características principales
- Referencia: ''
- Precio: 3.925.000 €
- Metros construidos : 321
- Baños : 4
- Dormitorios : 5
- Armarios :
- AA :
- Año construccion : 1880
- Tiene balcon :
Ubicación de la propiedad
NOTA: La información de esta propiedad puede haber cambiado, por tanto no somos responsables de la fiabilidad de la información, por favor contacte con nosotros para conocer las características exactas.
























































































