




Áticos en la Calle Calle de Santo Tomé, Centro, Madrid capital (Ref.)
Descripción de la propiedad
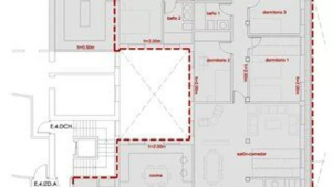
Gentile Home RE/MAX presenta un ático singular que invita a imaginar sin límites: más de 200 m² construidos, actualmente configurados como buhardilla en bruto y escriturados como dos viviendas independientes, abren la posibilidad de crear un proyecto residencial único en pleno corazón de Chueca-Justicia. Sus 180 m² útiles permiten diseñar hasta cuatro dormitorios amplios, tres baños y zonas de estar que aprovechen la orientación este-oeste para lograr luz cambiante a lo largo del día. En la cuarta planta, el ascensor conduce directamente a un espacio silencioso pese a su céntrica ubicación, dentro de un edificio de 1903 que conserva el encanto estructural de la época. Las alturas, los ángulos propios de una buhardilla y la amplitud continua hacen de este inmueble una base perfecta para quienes buscan transformar un volumen generoso en un hogar a medida.
El entorno de la Calle de Santo Tomé reúne lo más estimulante del distrito Centro: transporte público inmediato, una oferta de hostelería y ocio reconocida en toda la ciudad, pequeños comercios, mercados tradicionales, jardines cercanos y una vida urbana vibrante que, aun así, permite encontrar rincones tranquilos a pocos pasos.
Para más informaciones o concretar visitas contáctanos.
Características principales
- Referencia: 1870
- Precio: 950.000 €
- Metros construidos : 206
- Metros útiles : 180
- Baños : 3
- Dormitorios : 4
- Ascensor :
- Ultima planta :
- Año construccion : 1903
- Es Atico :
Ubicación de la propiedad
NOTA: La información de esta propiedad puede haber cambiado, por tanto no somos responsables de la fiabilidad de la información, por favor contacte con nosotros para conocer las características exactas.






















