




Áticos en la Calle Calle del General Pardiñas, Barrio de Salamanca, Madrid capital (Ref.2020)
Descripción de la propiedad
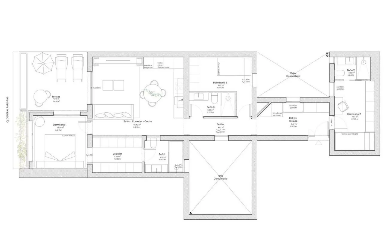
Gentile Home RE/MAX presenta un ático exclusivo ubicado en el entorno de General Pardiñas, en pleno barrio de Goya, dentro del prestigioso distrito de Salamanca. Situado en una sexta planta de una finca clásica de 1930 con portero y ascensor directo, esta propiedad ofrece una combinación poco habitual de privacidad, luminosidad y proyección patrimonial en una de las calles más emblemáticas de la zona. La vivienda cuenta con 139 m² construidos, de los cuales 108 m² corresponden a vivienda y 17 m² a una amplia terraza con orientación oeste, perfecta para disfrutar de vistas abiertas y de los atardeceres de Madrid.
Dispone actualmente de 3 dormitorios y 3 baños, con una distribución muy aprovechable y estancias exteriores gracias a sus amplios ventanales a ambos lados del pasillo, que inundan la vivienda de luz natural durante todo el día. Se encuentra en estado a reformar, lo que permite desarrollar un proyecto de transformación personalizado y opcional, adaptado a un estilo de vida contemporáneo en una finca con solo cuatro vecinos por planta. Cuenta con calefacción, patios en buen estado, gastos de comunidad contenidos y una estructura ideal para crear una vivienda de alto nivel con terraza privada en una de las zonas más demandadas de la capital.
Vivir en Goya es disfrutar de una calidad de vida excepcional, con excelentes conexiones de transporte público, una amplia oferta de hostelería y ocio, comercios de primer nivel, plazas y jardines para pasear, además de farmacias, mercados y todos los servicios necesarios a pocos pasos. Para más informaciones o concretar visitas, contáctanos.
Características principales
- Referencia: 2020
- Precio: 1.590.000 €
- Gastos de comunidad : 130
- Metros construidos : 122
- Metros útiles : 108
- Baños : 3
- Dormitorios : 3
- Terraza :
- Armarios :
- AA :
- Ascensor :
- Año construccion : 1930
- Es Atico :
- Metros usables : 108
- Aire Acondicionado :
- Año de construcción : 1930
Ubicación de la propiedad
NOTA: La información de esta propiedad puede haber cambiado, por tanto no somos responsables de la fiabilidad de la información, por favor contacte con nosotros para conocer las características exactas.




















