
Áticos en la Calle Calle del Tutor, Moncloa, Madrid capital (Ref.2077)
Descripción de la propiedad
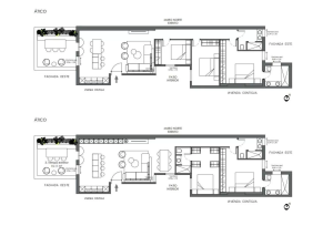
Gentile Home RE/MAX presenta una propiedad exclusiva en la emblemática calle Tutor, una ubicación que personifica la elegancia del barrio de Argüelles. Este activo inmobiliario se encuentra actualmente en un proceso de reforma integral de alto standing, cuya finalización está prevista para el próximo mes de febrero, permitiendo al futuro propietario estrenar una vivienda donde el diseño contemporáneo se fusiona con una estructura señorial. Según se observa en su distribución, el piso cuenta con tres amplios dormitorios y dos cuartos de baño completos, configurados para ofrecer la máxima privacidad y confort. El área social destaca por un salón de grandes dimensiones que se extiende hacia una acogedora terraza, proporcionando un espacio exterior privilegiado en pleno centro. La cocina independiente, equipada con una zona de lavadero anexa, refuerza la funcionalidad de una planta optimizada para la vida moderna. Con calefacción central y unos gastos de comunidad de tan solo 193€, esta propiedad representa una inversión inteligente en bienestar y eficiencia, estando disponible para ser habitada en escasas semanas.
Vivir en el entorno es rodearse de una de las mejores calidades de vida de la capital. La zona destaca por su proximidad a los pulmones verdes del Parque del Oeste y el Templo de Debod, ofreciendo jardines y plazas ideales para el esparcimiento. La oferta de servicios es inmejorable, con mercados tradicionales, farmacias y una hostelería de primer nivel que combina la tradición con locales de vanguardia. Las facilidades de transporte son excelentes, con múltiples conexiones de metro y autobús que permiten un acceso rápido a cualquier punto de interés cultural o comercial. Es un barrio consolidado, seguro y dinámico, donde el ocio y la comodidad diaria se encuentran a la puerta de casa, garantizando una experiencia urbana inigualable.
Es importante destacar que, en nuestro compromiso por ofrecer un servicio transparente y orientado al cliente, no cobramos ningún tipo de honorarios a la parte compradora por la gestión de la adquisición de esta propiedad.
Para obtener más información sobre los acabados de la reforma o para concretar una visita y conocer de primera mano esta joya, por favor, contáctanos.
*En breve más fotos.
Características principales
- Referencia: 2077
- Precio: 1.290.000 €
- Gastos de comunidad : 193
- Metros construidos : 145
- Baños : 2
- Dormitorios : 3
- Terraza :
- Armarios :
- AA :
- Ascensor :
- Año construccion : 1935
- Es Atico :
- Aire Acondicionado :
- Año de construcción : 1935
Ubicación de la propiedad
NOTA: La información de esta propiedad puede haber cambiado, por tanto no somos responsables de la fiabilidad de la información, por favor contacte con nosotros para conocer las características exactas.
